BT Arcadium 2 Bukit Tinggi — Premium Freehold 2-Storey Shops with Ultra-Wide Frontage
Section 1: Project Snapshot
BT Arcadium 2 represents the next commercial jewel of Bukit Tinggi — a hotspot driven by high population density, mature catchment, and constant retail demand.
Project: BT Arcadium 2
Type: 2-Storey Freehold Shop Offices
Location: Bukit Tinggi, Klang
Tenure: Freehold
Total Units: Limited 23 units only
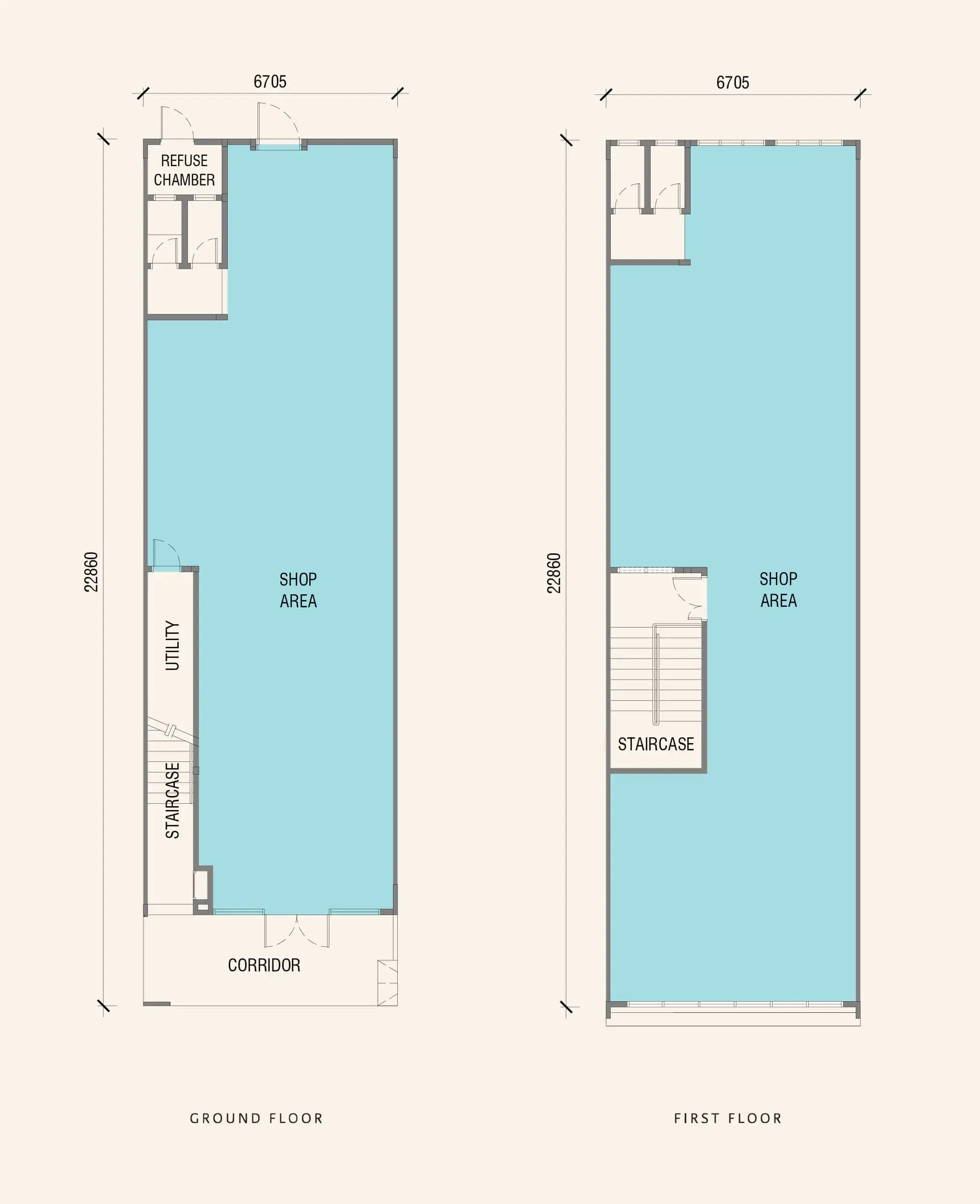
Built-up: 3,422 – 4,004 sq ft
Lot Size: 22’ × 75’ (Intermediate), 29.9’ × 75’ (End Lot)
Price Range:
Intermediate: RM2,xxx,000 / End Lot: RM3,xxx,000
Title: Individual
Purpose: Retail / F&B / Showroom / Office / Boutique Service Trades
Status: Open for sale — extremely limited availability
Section 2: Why Businesses Should Consider BT Arcadium 2, Bukit Tinggi Klang
1️⃣ A Rare Freehold Commercial Opportunity in Bukit Tinggi
Bukit Tinggi is one of Klang’s most matured, high-traffic townships.
Freehold shops in this area are limited and in strong demand — especially those near the main street.
2️⃣ Maximum Visibility + Ultra-Wide Frontage
Every unit comes with:
- Wide walkways
- Modern shop façade
- Excellent main-road visibility
These features significantly boost footfall and business exposure.
3️⃣ Flexible, Functional Layouts for All Business Types
With:
- 20’ ultra-high ground floor ceiling (mezzanine-ready)
- Spacious first-floor layouts
- Open-plan configuration
These shops suit:
✔ F&B
✔ Clinics
✔ Showrooms
✔ Boutique gyms
✔ Educational centres
✔ Co-working spaces
✔ Professional offices
✔ Specialty retail
4️⃣ High Spending Catchment Area
Bukit Tinggi’s population is supported by:
- AEON Bukit Tinggi
- Giant
- Tesco
- Major residential communities
- Hospital & education institutions
The spending power here is proven, stable, and continuously growing.
5️⃣ Low Supply, High Value Appreciation
Only 23 units of shops means:
- Scarcity value
- Strong rental demand
- Limited future competition
Low-density commercial products almost always appreciate faster.
Section 3: Who It’s For
✅ Business Owners Who Want a Prime Shop Location
Perfect for SMEs ready to upgrade from renting to owning.
✅ F&B Operators Wanting High Visibility
The double-volume layout is ideal for interior concepts & mezzanine seating.
✅ Investment Buyers Looking for Strong Rental
High population = high demand for commercial space.
✅ Professionals (Medical, Legal, Accounting)
Premium address + visibility enhances client trust.
✅ Entrepreneurs Wanting Freehold, Long-term Assets
No lease expiry issue. Long-term security for business.
Section 4: Insider Insights (Agent’s Take)
💡 1. Mezzanine Floor Potential Adds Massive Value
The 20’ ground floor ceiling allows future expansion without changing footprint — perfect for cafés, clinics, tuition centres, and gyms.
💡 2. Bukit Tinggi Is Klang’s Most Active Retail Zone
There is proven commercial track record — people here spend, and new businesses survive well.
💡 3. BT Arcadium 1 Had Strong Take-Up
Investors who missed Phase 1 are now targeting Phase 2 — accelerating demand.
💡 4. Wide Front Walkway = Higher Foot Traffic
Shops with wide frontage attract more walk-in customers, especially F&B and retail.
— Eric Lau, Real Estate Negotiator (REN 76299) +6012-696 3011
Section 5: Price & Unit Availability

✅ Intermediate Units (22’ × 75’) — 3,422 sf
- Unit 4
- Unit 7
- Unit 12 to 17
- Unit 20 to 22
📌 Price: RM2,xxx,000
✅ End Lot (29.9’ × 75’) — 4,004 sf
Unit 19
📌 Price: RM3,xxx,000
(Highest visibility + premium exposure)



Section 6: Location Highlights — BT Arcadium 2, Bukit Tinggi Klang

BT Arcadium 2 enjoys one of the most strategic and commercially vibrant locations in Klang, making it a high-demand address for business owners, F&B operators, and investors. Positioned within the bustling township of Bandar Bukit Tinggi, this development benefits from excellent visibility, mature catchment, and seamless accessibility.
1️⃣ Prime Position in Klang’s Fastest-Growing Commercial Hub
Bukit Tinggi is home to:
- AEON Bukit Tinggi
- Giant Hypermarket
- Tesco Extra
- Klang’s most active retail belt
This ensures consistent footfall, strong disposable income, and a ready customer base for all types of businesses.
2️⃣ High-Density Residential Catchment Within Immediate Radius
Surrounded by matured neighbourhoods:
- Bandar Bukit Tinggi 1, 2 & 3
- Bandar Parklands
- Bandar Botanic
- Ambang Botanic
- Bandar Puteri Klang
Collectively, these townships house tens of thousands of residents, guaranteeing stable and continuous demand for dining, retail, services, and lifestyle offerings.
3️⃣ Excellent Road Connectivity for Both Customers & Deliveries
Strategic road networks include:
- KESAS Highway
- LKSA Highway
- Jalan Langat (Federal Route)
These ensure fast access for customers from Klang, Shah Alam, Subang, and even PJ areas.
The location also supports:
✔ Smooth logistics
✔ Courier efficiency
✔ Strong accessibility for F&B delivery platforms (GrabFood, FoodPanda, ShopeeFood)
4️⃣ A Magnet for Daily Workforce Traffic
Bukit Tinggi is home to numerous corporate offices, SMEs, and service centers.
This creates high daytime population and strengthens:
- Lunch crowd traffic
- After-work retail demand
- Daily necessity spending
Businesses here benefit from both residential and workforce markets.
5️⃣ Established Commercial Ecosystem
Within minutes from BT Arcadium 2, you’ll find:
- F&B chains
- Banks
- Clinics
- Car showrooms
- Education centers
- Service trades
This creates a healthy commercial ecosystem—ensuring business sustainability and strong customer flow.
6️⃣ Highly Visible, Main-Road Frontage Advantage
The development fronts a busy main street with:
- Wide walkways
- Strong visibility
- High vehicular traffic
- Easy access for drivers and pedestrians
This premium visibility significantly boosts branding and business exposure.
7️⃣ Future Growth Potential of the Klang South Corridor
Bukit Tinggi remains a strategic hotspot as Klang expands southwards toward:
- Bandar Botanic
- Bandar Rimbayu
- Eco Sanctuary
- Kota Kemuning
As more high-density townships grow nearby, commercial value and demand are expected to rise steadily.
Section 7: FAQs
1. What types of businesses are suitable?
F&B outlets, clinics, wellness centres, showrooms, tuition centres, offices, retail boutiques, and service trades.
2. Can I build a mezzanine floor?
Yes — the 20’ ceiling height allows mezzanine expansion (subject to authority approval).
3. Does it come with an individual title?
Yes. This makes renovation, bank financing, and licensing easier.
4. Is parking sufficient?
The township provides ample public parking with high walkability.
5. What makes BT Arcadium 2 better than other shop rows?
Premium frontage, low density (only 23 units), modern façade, and strategic placement near main roads.
6. Are units still available?
Availability is extremely limited — only the units listed above are open for sale.


