The Arden Office Suites @ Bandar Sri Damansara – Freehold KL Business Address with 455 Units from RM542K
Section 1: Project Snapshot
The Arden is a modern freehold office development designed to meet the evolving demands of businesses, offering flexible layouts, efficient space planning and long-term ownership value in a strategic commercial district.
Project Name: The Arden – Office Suites
Development Type: Strata Office
Tenure: Freehold
Total Units: 455 units
Block: 1
Title: Commercial Title
Completion: Q1 2028
Maintenance + Sinking Fund: RM0.65 psf (inclusive)
Built-up Sizes: 495 – 1,615 sqft
Price Range: From RM542,000
Price PSF: From RM1,100 psf
Section 2: Why Should Consider The Arden Office Suites Damansara Avenue
1️⃣ Freehold Office – Rare and High Long-Term Value
A freehold strata office is uncommon, making it a strong asset for capital preservation and future appreciation.
2️⃣ Flexible Layouts for Business Growth
From compact suites to large corporate spaces — businesses can customise the space to fit their workflow and team dynamics.
3️⃣ Attractive Entry Price for Investors
From only RM542k, with high rental appeal due to:
- Good location
- Modern office specs
- Low maintenance cost
4️⃣ Efficient Maintenance Fee (RM0.65psf)
Keeps operational cost low, attractive for SMEs and long-term tenants.
5️⃣ Strong Surrounding Commercial Ecosystem
Close to retail, F&B, banking, medical and lifestyle conveniences — essential for staff and clients.
6️⃣ Future-Ready Facilities
Secure access, business-class environment and modern building systems ideal for today’s hybrid work culture.
Section 3: Who It’s For
✅ Business Owners
Upgrade from shoplots or old offices into a modern, secure workspace.
✅ SMEs Expanding Teams
Mid-sized companies needing efficient floor layouts and professional image.
✅ Professionals & Agencies
Lawyers, accountants, designers, consultants.
✅ Co-Working & Shared Office Operators
Good unit sizes for partitioning, high ROI potential.
✅ Property Investors
Looking for stable rental demand, low holding cost and future capital uplift.
✅ Startups & Entrepreneurs
Affordable compact suites ideal for lean operations.
Section 4: Insider Insights (Agent’s Take)

“ Freehold commercial offices in established areas are becoming rare — The Arden stands out as a long-term, low-risk commercial asset.
The layout efficiency and mid-range PSF pricing make it attractive to both owner-occupiers and tenants.
Demand for modern, smaller office suites is rising as companies downsize from large, costly spaces to more efficient layouts.
With Q1 2028 completion, buyers benefit from progressive payment and growth in the surrounding business ecosystem over the next few years. ”
— Eric Lau, Real Estate Negotiator (REN 76299) +6012-696 3011
Section 5: Price & Layout Overview
Unit Types & Sizes
The Arden offers a wide mix of office suites catering to startups, SMEs, expanding companies, and premium corporates — from compact 495 sqft layouts to expansive 3,111 sqft signature floors.
Full Unit Mix Table
| Type | Built-Up (sqft) | Washrooms | Units |
|---|---|---|---|
| A1 | 495 | 1 | 33 |
| A1(M) | 495 | 1 | 31 |
| A2 | 495 | 1 | 33 |
| A2(M) | 495 | 1 | 31 |
| B | 560 | 1 | 32 |
| C | 786 | 1 | 31 |
| D | 829 | 1 | 32 |
| E | 883 | 1 | 32 |
| F1 | 958 | 1 | 33 |
| F2 | 2,357 | 2 | 1 |
| F3 | 3,111 | 2 | 1 |
| G | 1,087 | 1 | 33 |
| G(M) | 1,087 | 1 | 33 |
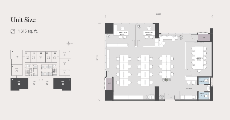
| H | 1,615 | 2 | 33 |
| H(M) | 1,615 | 2 | 33 |
| I | 1,313 | 2 | 33 |
| TOTAL | — | — | 455 units |
Price Overview
- Price from: RM542,000
- Price per sqft: From RM1,100 psf
- Sizes: 495 – 3,111 sqft
- Completion: Q1 2028
The Arden Office Suites Damansara Avenue – Type A1

The Arden Office Suites Damansara Avenue – Type A2

The Arden Office Suites Damansara Avenue – Type B

The Arden Office Suites Damansara Avenue – Type C

The Arden Office Suites Damansara Avenue – Type D

The Arden Office Suites Damansara Avenue – Type E

The Arden Office Suites Damansara Avenue – Type F1

The Arden Office Suites Damansara Avenue – Type F2

The Arden Office Suites Damansara Avenue – Type F3

The Arden Office Suites Damansara Avenue – Type G

The Arden Office Suites Damansara Avenue – Type H

The Arden Office Suites Damansara Avenue – Type I

Section 6: Strategic Damansara Avenue Location for Business
✅ A Premier PJ Business Address
The Arden Office Suite is strategically positioned within Damansara Avenue, one of Petaling Jaya’s fastest-rising commercial districts. This location gives your business a professional identity surrounded by corporate offices, lifestyle conveniences, and upcoming mixed-use developments.
✅ Business & Corporate Advantages
- Situated inside Damansara Avenue Masterplan — an emerging business, retail & lifestyle hub
- Corporate neighbours include banks, SMEs, tech firms, creative agencies & regional headquarters
- Ideal for startups, SMEs, agencies, consultants & private practices
✅ Connectivity That Works for Your Business
Direct access to LDP, DASH, SPRINT, Penchala Link & NKVE
Fast connection to:
- Desa ParkCity – 4.5 km
- Bandar Utama (1 Utama) – 3.2 km
- The Curve / IKEA / Mutiara Damansara – 2.5 km
- Mont Kiara – 6.8 km
- KL City Centre – 14 km
Clients, suppliers and staff can reach you conveniently from PJ, KL, Hartamas, Mont Kiara, Kepong & Damansara.
✅ Public Transport Access
- MRT Mutiara Damansara – 2.6 km
- MRT Bandar Utama – 3.5 km
- Surrounded by mature bus routes and ride-hailing availability
✅ Daily Business Convenience
Everything you need for daily operations is within minutes:
- Banks & ATMs
- F&B clusters (casual, cafés, corporate dining)
- Convenience stores & supermarkets
- Clinics, gyms, coworking & meeting facilities
- Hotels & serviced residences for outstation clients
✅ Why This Location Works for Office Suites
- Professional corporate environment
- Excellent accessibility for clients & employees
- Close to mature residential catchments for workforce supply
- Surrounded by retail, amenities & lifestyle conveniences
- High visibility and strong business presence
Section 7: FAQs
1. Is The Arden a freehold or leasehold development?
Freehold.
2. What type of property is this?
Strata office suites (commercial title).
3. How many units are available?
455 units across a single tower.
4. What is the maintenance fee?
RM0.65 psf including sinking fund.
5. Who is this project suitable for?
Businesses, SMEs, startups, professional firms and investors.
6. What is the completion date?
Targeted for Q1 2028.
7. What is the smallest and largest unit size?
From 495 sqft up to 1,615 sqft.
8. What is the entry price?
From RM542,000.
Ready to Explore The Arden?

📲 WhatsApp for Full Package & Latest Units
📄 Download Brochure & Floor Plans
🏢 Book a Showroom / Presentation Slot
💼 Request Full Investment Analysis

Register Your Interest
“Contact me for a full 1-to-1 consultation — I help you choose the best unit, compare with nearby projects, optimise your loan approval, analyse rental ROI, and avoid common buyer mistakes. Everything you need BEFORE you book!”



